Get a quote

No:1 Trusted Builder Property Site.| 100% Quality for sure

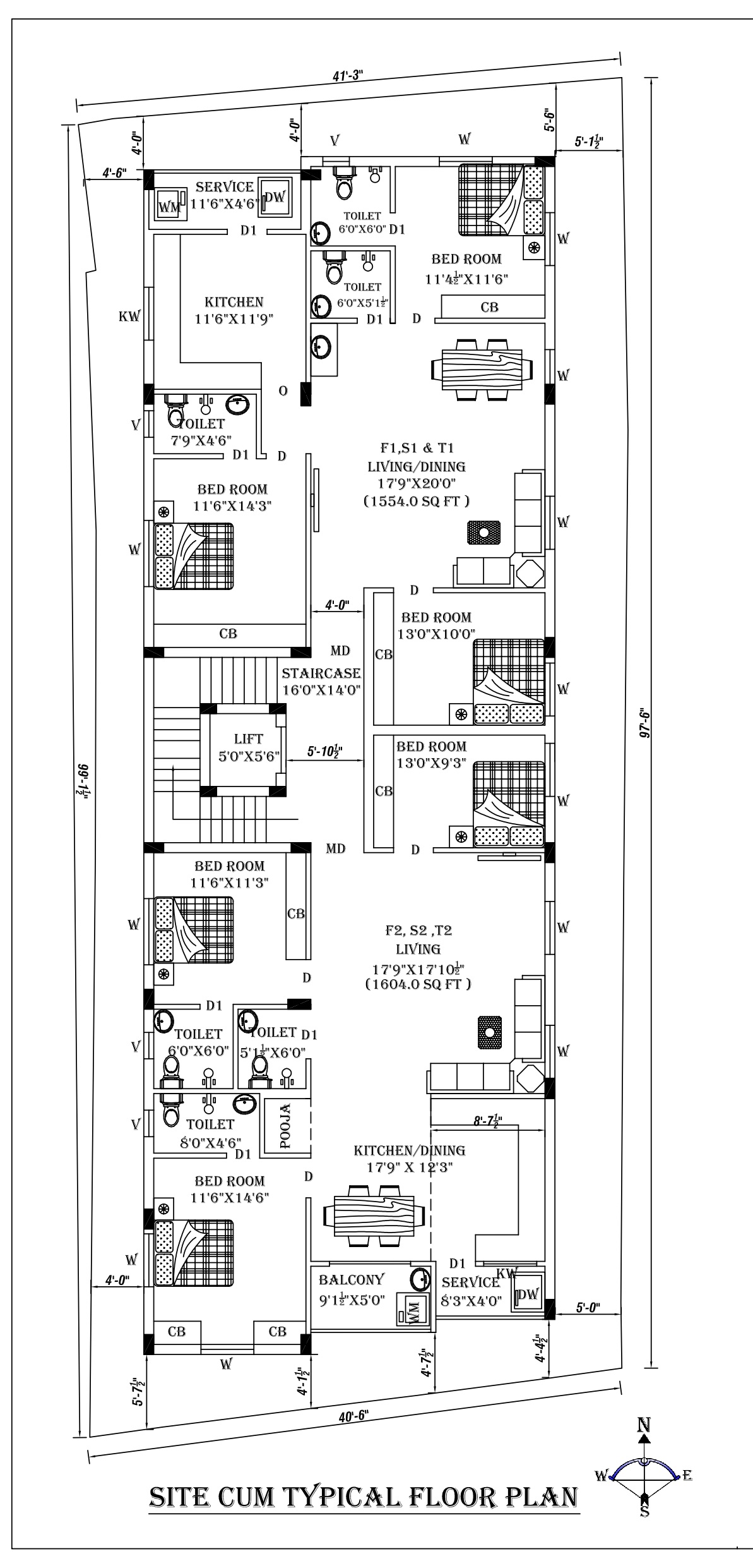
3BHK Bulider floor Apartments for sale in West Mambalam Raju Street

Raju street ₹2.33C

3BHK

1554 Sqft | Flats
Possession Date : Sep 2026
Approved Banks : SBI,HDFC,ICICI
Under Construction|Spacious Flat with Good Ventilation in very prime location of city
Plenty of Reason To Choose our Project

Very Prime Location

* Well made Structural Design

* Suprior Quality of Materials

*15+Amenities in thus projects 

Briefs

In West mambalam, Chennai, we have 3BHK Bulider floor Apartment for sale in west mambalam. Its our Premium Apartment with Live homes. For your reference, we provided Current Site Images and various floor plans here. This is integrated with the available 3BHK layouts from us. The size is 1554 square feet. Currently, the project is in Under Construction state. The area might be more convenient for west Mambalam Raju Street Vivekanandapuram. The Live Homes project includes unique amenities like a lift, CCTV, Covered parking,Rain water harvesting and other things. Well-made structure, and we're here to offer you first-rate support. Thanks

Highlights

Project Type
Flats
Basic Price
₹2.33C
Per SQFT Rate
₹15,000
Unit SQFT Size
1554 Sqft
No. of Bedroom
3 BHK
Facing
South
No. of Balconies
1
No. of Units
1
Total no of floors
3
Furnishing Status
Unfurnished
Bath Count
3
Property Type Property Size Property Price
3BHK 1554 Sqft 2.33 Cr

Note: Other cost : GST5% | CCP | Property assessment & Other Tax | REGISTRATION Extra....!!!

Project plans

Live Photos

Amenities

Car Parking

Car Parking

CCTV

CCTV

Lift

Lift

Power back up

Power back up

Rain water harvesting

Rain water harvesting

Video Door Phone

Video Door Phone

Bore well

Bore well

Lift upto Terrace

Lift upto Terrace

As per Vaasthu

As per Vaasthu

EV Charging Point

EV Charging Point

Specifications

  • Power Backup
  • Electricity Board 3Phase
  • Red Brick
  • Cooling Tile
  • Teak Wood Maindoor
  • Vitrified Tiles flooring
  • Sump
  • Coramental Cement
  • Video Door Phone
  • UPVC Windows
  • Godrej Lock
  • Location nearby

  • Ashok Nagar metro station 2km
  • Mambalam railway station 1.1km
  • Tnagar bus depo 1.7km
  • G R T Mahalakshmi Vidyalaya School 900m
  • Jawahar Vidyalaya Senior Secondary School 1.2km
  • Shri Shankarlal Sundarbai Shasun Jain College for Women 1.5km
  • Vasanthram Hospital (P) Limited 500m.
  • Enquire Now

    Blog

    Image 1
    Image 2
    Image 3
    Image 4
    Description of the image

    Download Livehomes App
    and Notification for New Properties

    Play Store Logo iOS App Store Logo

    To Make Your Builder Floor Apartment, flats, Villa, Search convenient and attractive  

    Real Time Experience | Budget friendly Search | Notification as on Date

    Frequently asked questions

    Yes, we offer property management services for landlords who require assistance with managing their rental properties. Our services include finding tenants, collecting rent, handling maintenance issues, and ensuring compliance with legal requirements.

    Construction is the process of building, assembling, or erecting structures, infrastructure, or facilities.

    Look for designers with experience in projects similar to yours, check their portfolio, and ensure they understand your vision and budget.

    Trends vary, but some popular ones include sustainable design, biophilic design (connecting with nature), and minimalist aesthetics.

    The borrower receives a lump sum of money from the lender, which is then repaid over time with interest, typically through monthly payments.

    About Us | Properties | Home Loan | Join Venture | Contact us